assert(): Calling assert() with a string argument is deprecated in /data/0/b/0b6104e3-1f4b-4428-b7cd-cb9ec3fed481/ksatelier.sk/web/Ip/Internal/Revision.php:44
Projekt : novostavba rekreačnej chaty
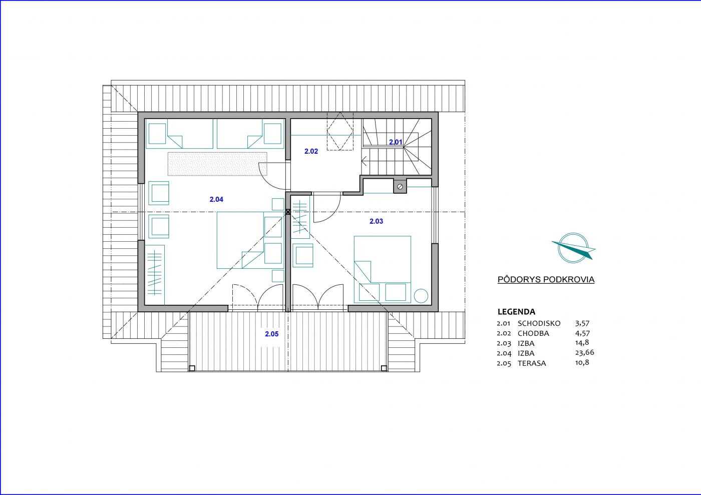
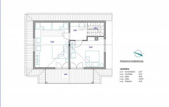
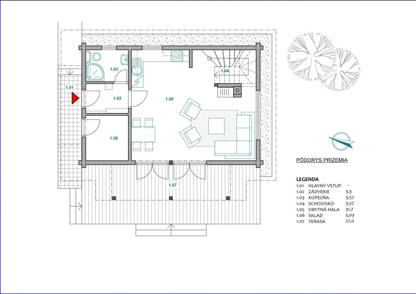
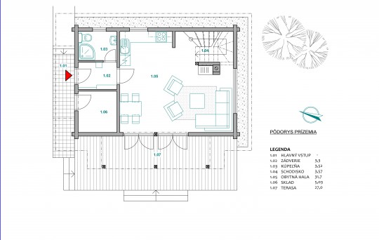
Úžitková plocha : 104 m2
Zastavaná plocha : 54 m2
Rekreačná chata bola navrhnutá ako zrubová stavba pre individuálnu rekreáciu pri vodnej nádrži. Objekt svojím vybavením a úžitkovou plochou poskytuje dostatočný komfort aj na dlhodobejší pobyt. Hlavný dôraz pri návrhu bol kladený na prepojenie s okolitou prírodou a vodnou plochou, čo sa prenieslo do konštrukcie rozľahlej prekrytej terasy a balkóna na západnej strane objektu.
KS ateliér 2017 © ⋅ všetky práva vyhradené