assert(): Calling assert() with a string argument is deprecated in /data/0/b/0b6104e3-1f4b-4428-b7cd-cb9ec3fed481/ksatelier.sk/web/Ip/Internal/Revision.php:44
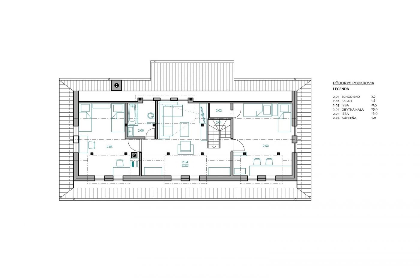
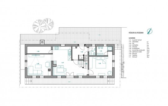
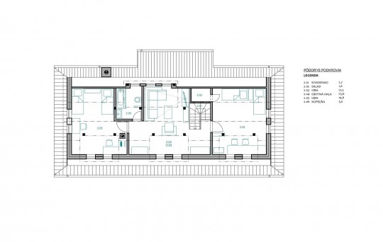
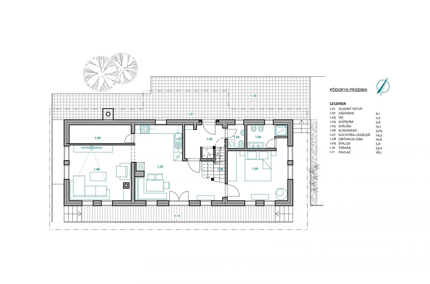
Projekt : revitalizácia drevenice
Úžitková plocha : 151 m2
Zastavaná plocha : 112 m2
Požiadavkou mladej rodiny bolo zrevitalizovanie a prestavba pôvodnej drevenice na dom na celoročné bývanie tak, aby sa zachoval tradičný výzor drevenice a pôvodné konštrukcie. V jestvujúcom nevyužitom podkroví boli vytvorené nové obytné priestory. Drevenica opäť spĺňa funkciu, na ktorú bola pri svojej stavbe určená a zároveň vyhovuje novým požiadavkám mladých ľudí na bývanie.
Foto: Richard Petrech
KS ateliér 2017 © ⋅ všetky práva vyhradené