assert(): Calling assert() with a string argument is deprecated in /data/0/b/0b6104e3-1f4b-4428-b7cd-cb9ec3fed481/ksatelier.sk/web/Ip/Internal/Revision.php:44
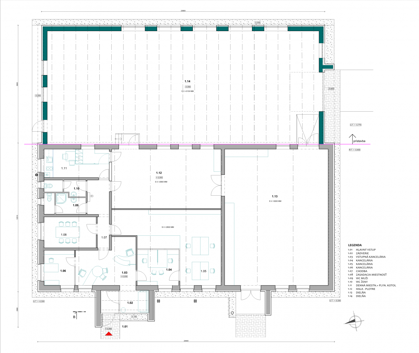
Projekt : Kancelárske a prevádzkové priestory firmy Grafon, Liptovský Mikuláš
Úžitková plocha : 447,2 m2
Zastavaná plocha : 500,1 m2
Firma Grafon sa zaoberá maloformátovou aj veľkoformátovou digitálnou tlačou a výrobou reklamných panelov a billboardov. Pre účely jej prevádzky bola navrhnutá prestavba a prístavba jestvujúcej haly, ktorá pôvodne slúžila ako sklad. Pôvodný objekt je po stavebných úpravách a zateplení funkčne rozdelený na administratívnu časť – kancelárske priestory a tlačiarenskú časť so skladovými priestormi. Pristavaná hala tvorí jeden veľký otvorený priestor - dielňu. Grafické panely s logom firmy na fasádnych prvkoch zdôrazňujú jednotlivé vstupy a tiež plnia funkciu reklamy viditeľnú už od samotného vstupu do mesta.
KS ateliér 2017 © ⋅ všetky práva vyhradené