assert(): Calling assert() with a string argument is deprecated in /data/0/b/0b6104e3-1f4b-4428-b7cd-cb9ec3fed481/ksatelier.sk/web/Ip/Internal/Revision.php:44
Projekt : novostavba rodinného domu
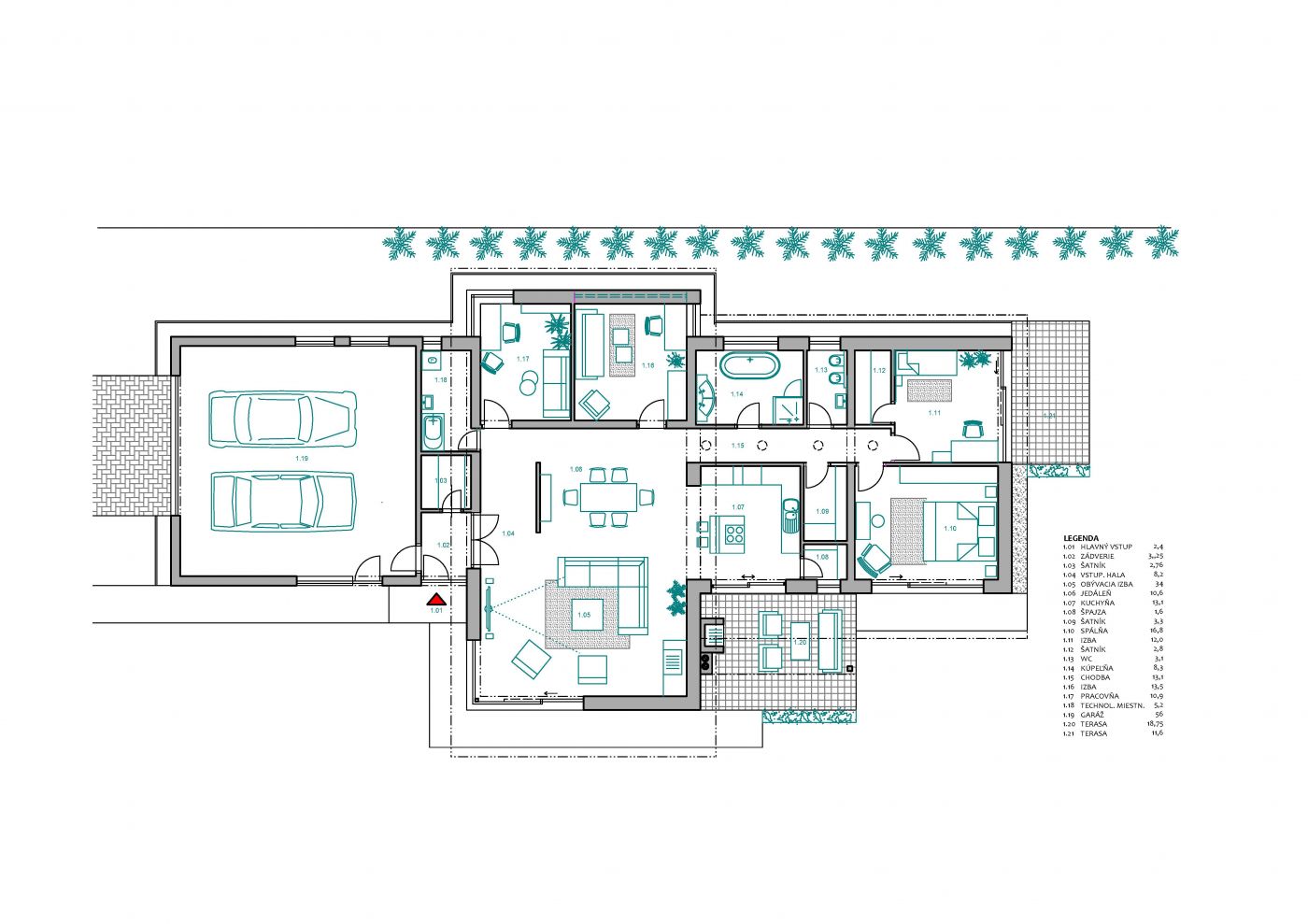
Úžitková plocha : 220 m2
Zastavaná plocha : 260 m2
Požiadavka investora bola navrhnúť moderný jednopodlažný rodinný dom. Dispozíciu bolo nutné prispôsobiť úzkemu a dlhému pozemku a zároveň chrániť súkromie majiteľa v smere od hlavnej cesty. Táto požiadavka bola vyriešená osadením domu do dostatočnej vzdialenosti od komunikácie a na prístupové časti pozemku bol situovaný prístrešok pre autá a v prednej časti domu dvojgaráž. Jednotlivé zóny domu sú prenesené aj do hmotového a farebného členenia domu. Obývacia izba s jedálňou sú umiestnené v zdôraznenej časti domu, s vyššími stropmi, ktoré umožňujú hru pohľadov. Súkromná nočná časť sa nachádza v zadnej, kľudovej časti domu s prepojením na rozľahlú záhradu.
KS ateliér 2017 © ⋅ všetky práva vyhradené